
一種清雅居家生活向往,清新逸致的生活狀態,源于歷史文人騷客身處盛世之下所衍生出來的狀態。本空間以“逸”為設計主題,追求這種居家狀態,讓主人居住在空間中,得到一種源于精神的生活享受。
本空間更為年輕、創意和國際性,增加了空間的結構穿插和自然光線的引入。青嫩極簡而具有個性的識別度,卻是將古時文人墨客心中的胸臆,和主人年輕才華的外放特征所連接!

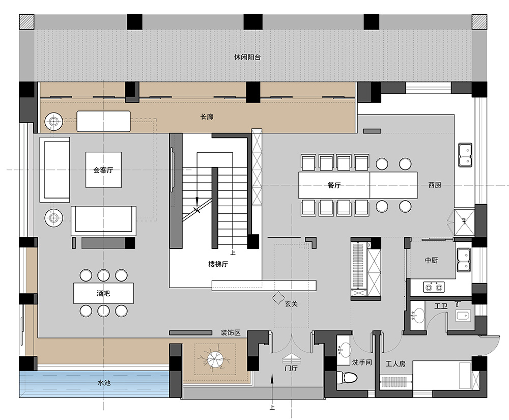
廣州301平米以上別墅現代簡約風格裝修效果圖
別墅裝修設計一樓平面圖

廣州301平米以上別墅現代簡約風格裝修效果圖
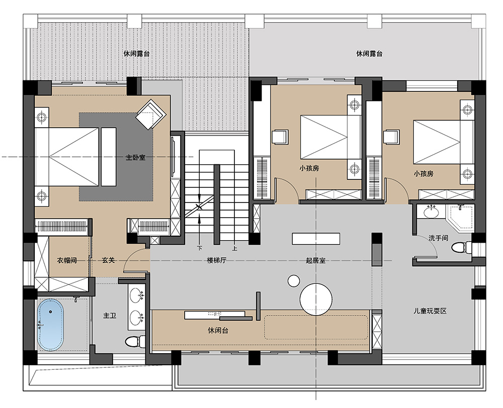
別墅裝修設計二樓平面圖

廣州301平米以上別墅現代簡約風格裝修效果圖
別墅裝修設計二樓樓梯廳

廣州301平米以上別墅現代簡約風格裝修效果圖
別墅裝修設計二樓休閑廳

廣州301平米以上別墅現代簡約風格裝修效果圖
別墅裝修設計二樓兒童玩樂區

廣州301平米以上別墅現代簡約風格裝修效果圖
別墅裝修設計二樓主臥室

廣州301平米以上別墅現代簡約風格裝修效果圖
別墅裝修設計一樓玄關

廣州301平米以上別墅現代簡約風格裝修效果圖
別墅裝修設計一樓樓梯廳

廣州301平米以上別墅現代簡約風格裝修效果圖
別墅裝修設計一樓酒吧

廣州301平米以上別墅現代簡約風格裝修效果圖
別墅裝修設計一樓客廳

廣州301平米以上別墅現代簡約風格裝修效果圖
別墅裝修設計一樓客廳

廣州301平米以上別墅現代簡約風格裝修效果圖
別墅餐廳裝修設計

廣州301平米以上別墅現代簡約風格裝修效果圖
別墅餐廳裝修設計

廣州301平米以上別墅現代簡約風格裝修效果圖
別墅走廊裝修設計
廣州101-200平米現代簡約風格三江雅苑裝修設計效果圖
現代簡約風格101-200平米三居室
江門101-200平米現代簡約風格海倫時光家裝設計效果圖
現代簡約風格101-200平米三居室
江門101-200平米現代簡約風格御濱名門家裝設計效果圖
現代簡約風格101-200平米三居室
廣州101-200平米現代簡約風格遠洋天祺室內設計效果圖
現代簡約風格101-200平米四居室
廣州100平米以下現代簡約風格室內裝修設計案例
現代簡約風格100平米以下二居室
柳州101-200平米現代簡約風格富灣國際家裝設計案例
現代簡約風格101-200平米四居室
廣州101-200平米現代簡約風格遠洋新天地室內設計效果圖
現代簡約風格101-200平米三居室
柳州101-200平米現代簡約風格君華新城裝修設計案例
現代簡約風格101-200平米三居室